Hull Student Homes logo

Hull Student Homes

Hull student accommodation specialists

Back to search

Hull student accommodation

6 Bed House - Wellesley Avenue

#080

Wellesley Avenue, Hull HU6 7LN

Bills included6 bed2 bathhouse
6 Bed House - Wellesley Avenue photo 1

At a glance

Bedrooms

6

Bathrooms

2

Deposit

£100

Bills

Included

Available from

2/26/2026

Property type

house

Description

A well-maintained 6-bedroom house available for students in Hull. The property comes fully furnished with desks in every bedroom, perfect for studying. Includes broadband, bills, and a washer/dryer. Located in a popular student area with easy access to the University of Hull.

What's nearby

  • 5 mins walk to campus
  • Groceries within 5 mins walk
  • Buses to city centre close by

Walking Route

Property → University of Hull

Walking

Best for students

Distance

View on map

Features

Bills includedBroadband includedWasher/dryerDesks in bedroomsAll double bedsSmart TV in loungeTwo bathroomsSecure entryOff-street parking

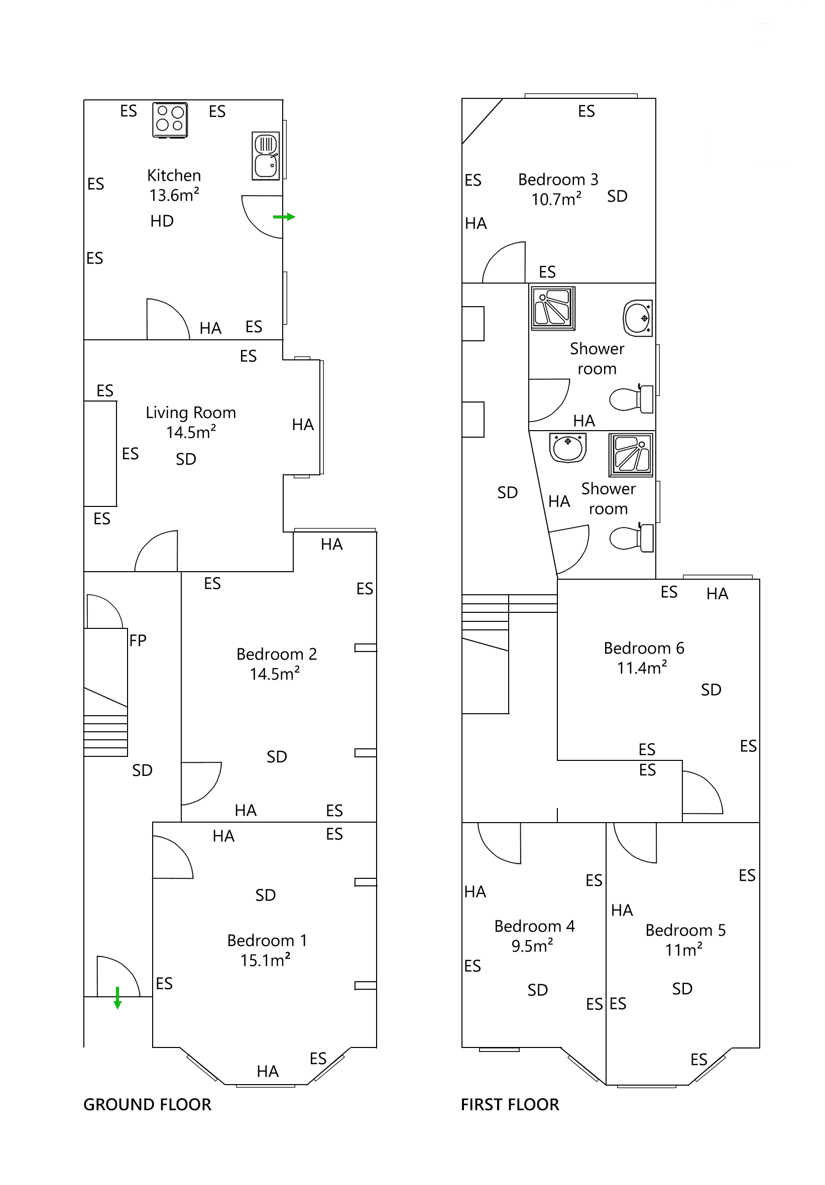
Floor plan

Floor plan for 6 Bed House - Wellesley Avenue