
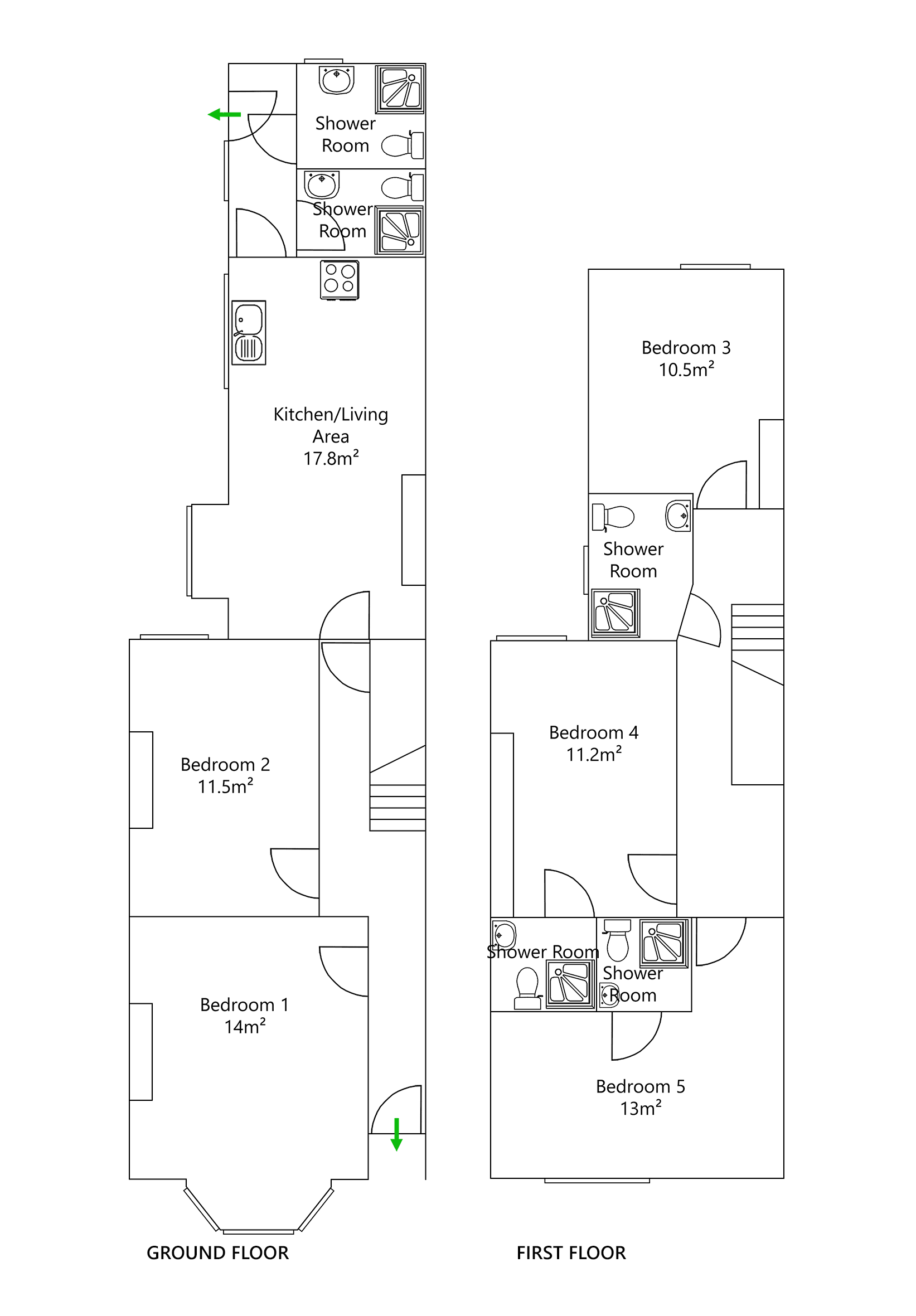
At a glance
Bedrooms
5
Bathrooms
5
En-suite rooms
5
Deposit
£100
Bills
Included
Available from
2/26/2026
Property type
house
Description
A well-maintained 5-bedroom house available for students in Hull. The property comes fully furnished with desks in every bedroom, perfect for studying. Every bedroom has its own en-suite bathroom. Includes broadband, bills, and a washer/dryer. Located in a popular student area with easy access to the University of Hull.
What's nearby
- 5 mins walk to campus
- Groceries within 5 mins walk
- Buses to city centre close by
Walking Route
Property → University of Hull
Walking
Best for students
Distance
View on map
Features
Bills includedBroadband includedWasher/dryerDesks in bedroomsEn-suite roomsAll double bedsSmart TV in loungeSecure entryOff-street parking
Floor plan

