Hull Student Homes logo

Hull Student Homes

Hull student accommodation specialists

Back to search

Hull student accommodation

3 Bed House - Raglan Street

#102

Raglan Street, Hull HU5 2JN

Bills included3 bed1 bathhouse
3 Bed House - Raglan Street photo 1

At a glance

Bedrooms

3

Bathrooms

1

Deposit

£100

Bills

Included

Available from

2/26/2026

Property type

house

Description

A well-maintained 3-bedroom house available for students in Hull. The property comes fully furnished with desks in every bedroom, perfect for studying. Includes broadband, bills, and a washer/dryer. Located in a popular student area with easy access to the University of Hull.

What's nearby

  • 5 mins walk to campus
  • Groceries within 5 mins walk
  • Buses to city centre close by

Walking Route

Property → University of Hull

Walking

Best for students

Distance

View on map

Features

Bills includedBroadband includedWasher/dryerDesks in bedroomsAll double bedsSmart TV in loungeSecure entryOff-street parking

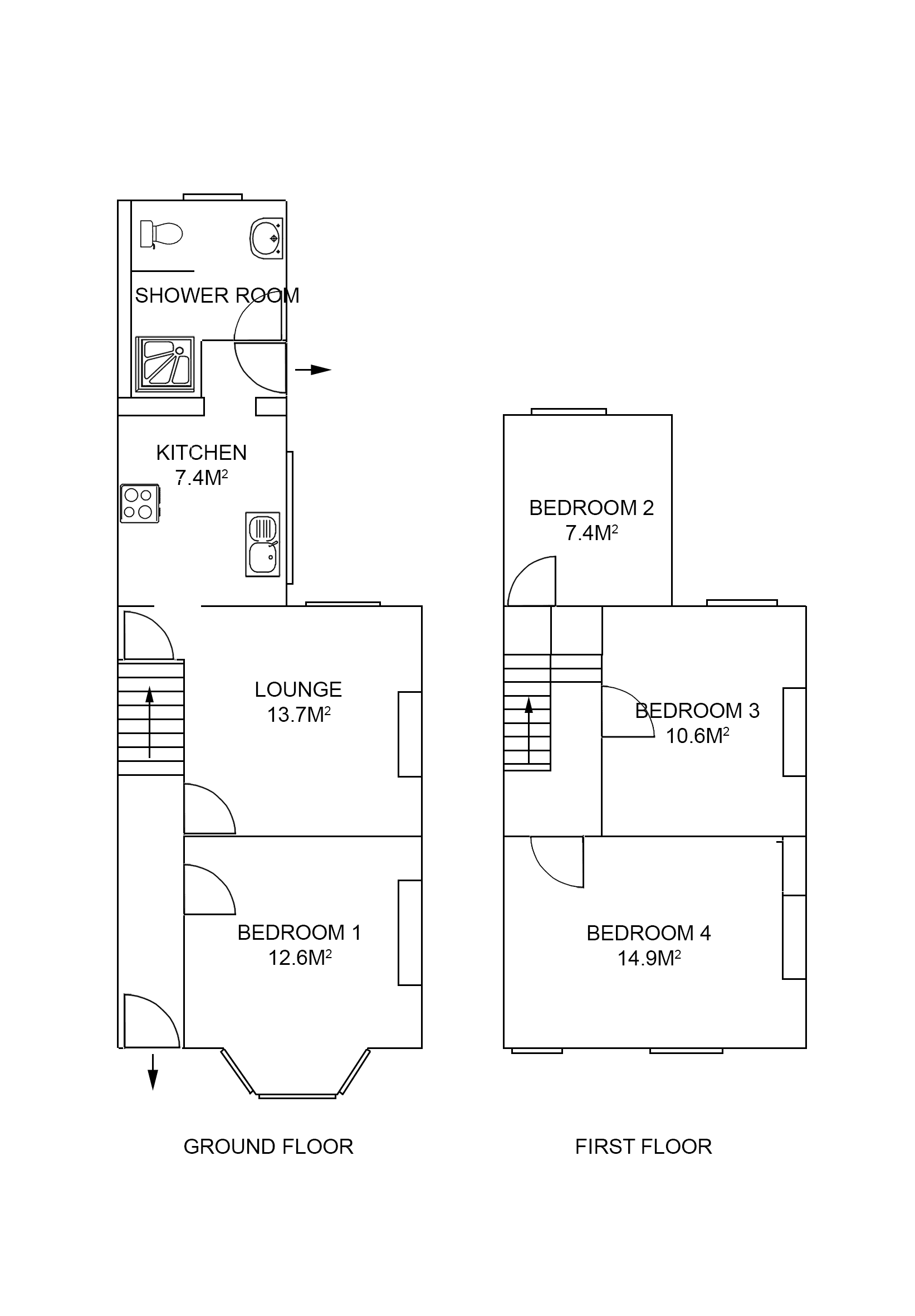
Floor plan

Floor plan for 3 Bed House - Raglan Street